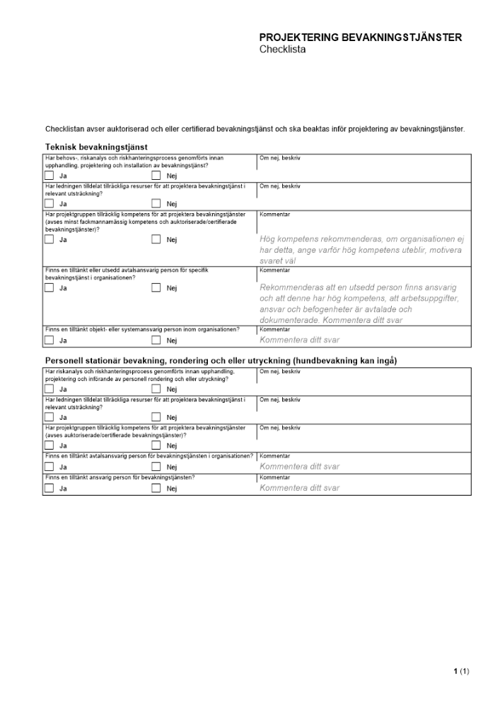
Projektering bevakningstjänster - Checklista 2026

Checklistan är framtagen för att ansvariga personer ska ha kontroll på vilka bevakningstjänster som införs i organisationen och det ska dokumenteras.

Checklistan omfattar tekniska och personella bevakningstjänster och avhandlar:

  • Riskanalys
  • Resurser
  • Kompetens
  • Ansvar

Specifikation

  • Projektering bevakningstjänster - Checklista 2026
  • 20342
  • 1,63
  • Svenska
  • 0
  • 1
  • docx
695 kr
Välj din plan

Med vårt abonnemang får du obegränsad tillgång till alla våra dokument och guider