Metodstöd behovs-, riskanalys och riskhantering 2026

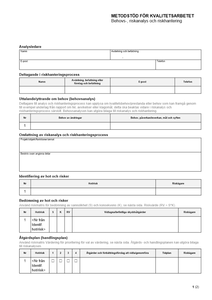
Dokumentet rapport för fel, avvikelse, klagomål och korrigerande åtgärd är framtagen som stöd, dels för att ha ett fastställt metodstöd för att rapportera, men också för att tillbud och incidenter ska dokumenteras och förmedlas till rätt personer inom organisationen.

Detta fastställda system visar på nyttan för andra aktiviteter och då är den i sammanställd form, på ett spårbart sätt. Bland annat bör sammanställningar av rapporter för fel, avvikelser, klagomål och korrigerande åtgärder utgöra del av underlag för återkommande riskanalys och riskhanteringsprocess.

Specifikation

  • Metodstöd behovs-, riskanalys och riskhantering 2026
  • 20300
  • 1,63
  • Svenska
  • 0
  • 2
  • docx
695 kr
Välj din plan

Med vårt abonnemang får du obegränsad tillgång till alla våra dokument och guider